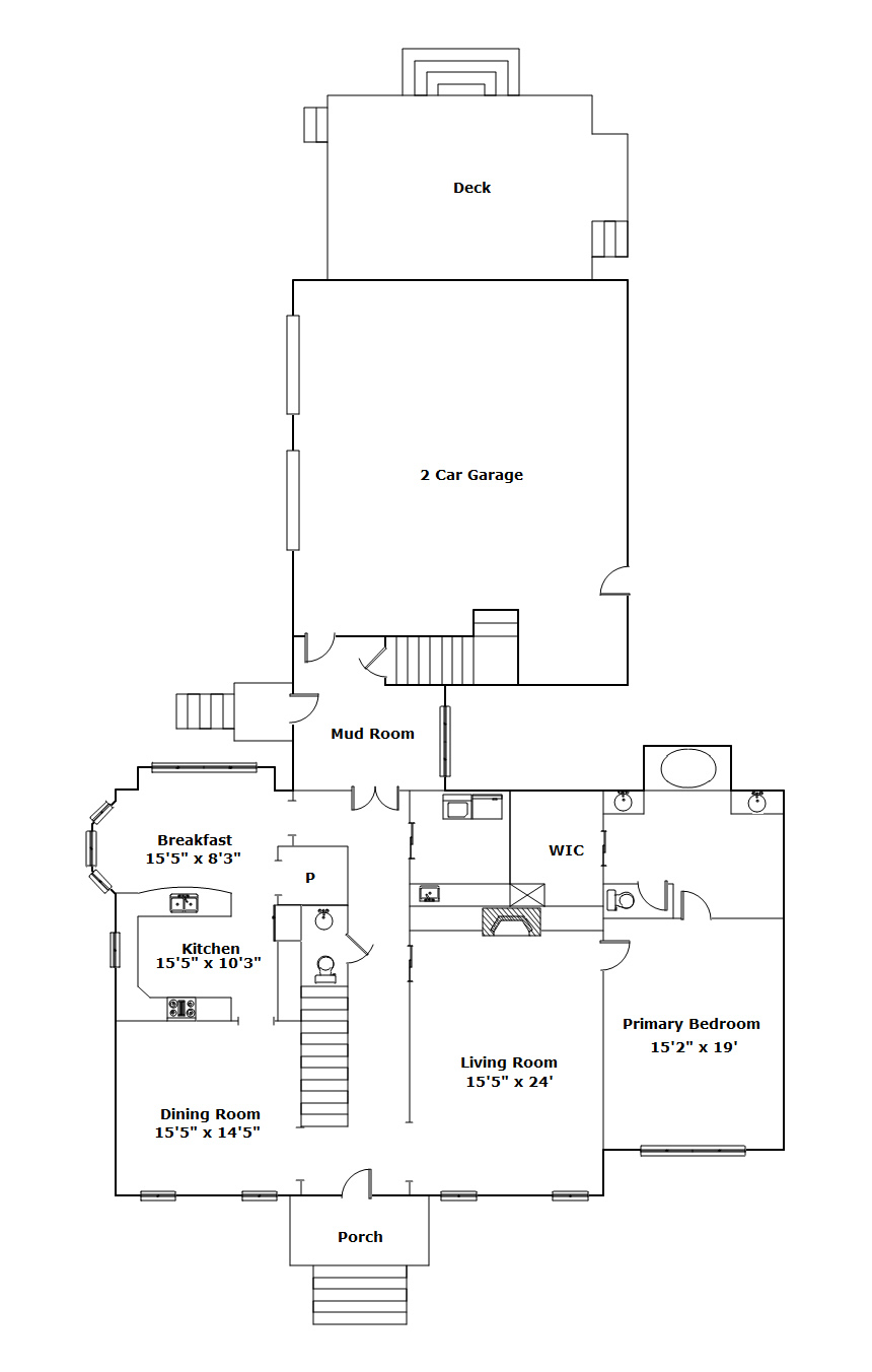
Click an icon on the floor plan below. Once opened you can drag the corresponding content to your prefered location!
Photo Icon -
Information Icon - 
Photo Icon -










































Property Details
Total
4118
Main Level
2215
Upper Level
1326
Frog
577
Garage
967
4
Beds
3 / 1