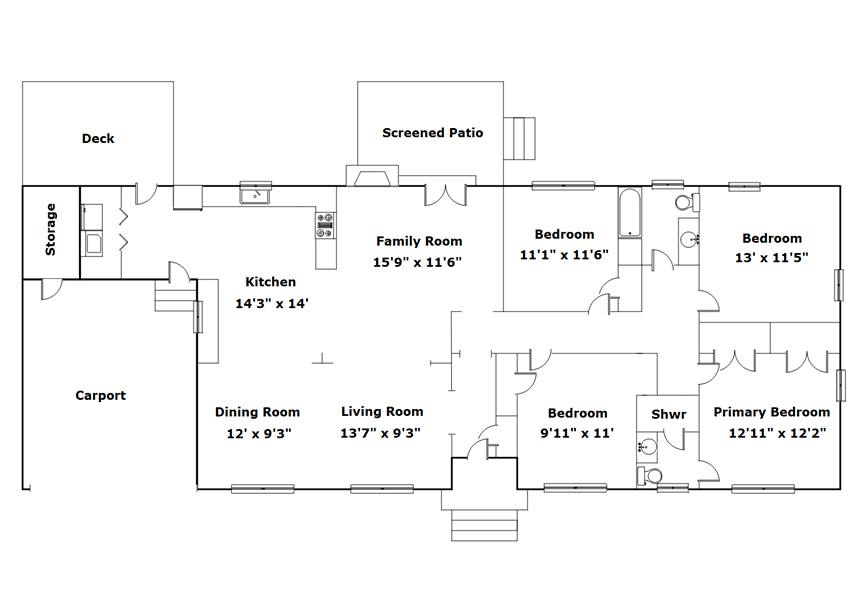
Click an icon on the floor plan below. Once opened you can drag the corresponding content to your prefered location!
Photo Icon -
Information Icon - 
Photo Icon -
































Property Details
Main Level
1876
Carport
336
4
Beds
2