400 Deer Crossing Rd
Elgin, SC 29045
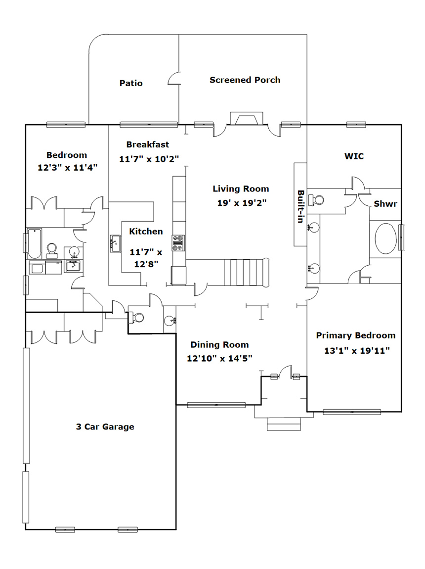
Click an icon on the floor plan below. Once opened you can drag the corresponding content to your prefered location!
Photo Icon - Photo             Information Icon - Info

Property Details

Total
3525
Main Level
2232
Upper Level
1293
Garage
770
5

Beds

4 / 1

Baths