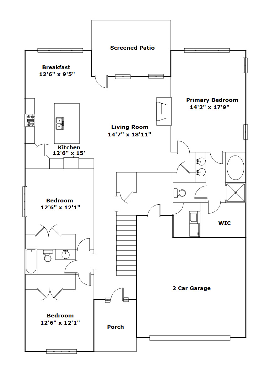
Click an icon on the floor plan below. Once opened you can drag the corresponding content to your prefered location!
Photo Icon -
Information Icon - 
Photo Icon -




































Property Details
Total
2719
Main Level
1990
Upper Level
729
Garage
470
5
Beds
3