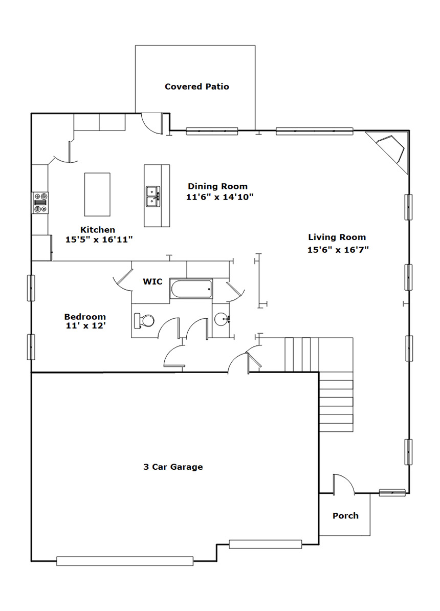
Click an icon on the floor plan below. Once opened you can drag the corresponding content to your prefered location!
Photo Icon -
Information Icon - 
Photo Icon -


























Property Details
Total
3423
Main Level
1438
Upper Level
1985
Garage
725
5
Beds
4