Click an icon on the floor plan below. Once opened you can drag the corresponding content to your prefered location!
Photo Icon -
Information Icon - 
Photo Icon -































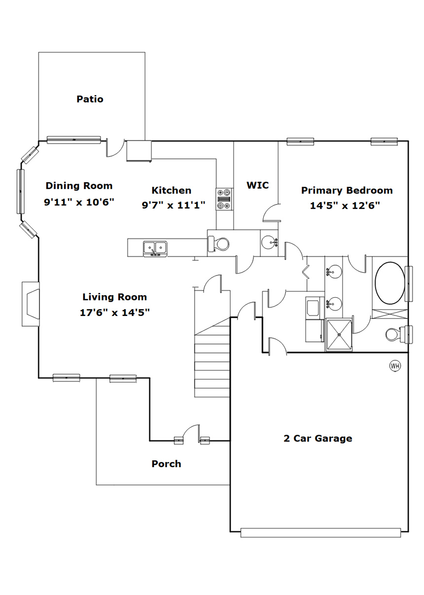
Property Details
Total
1915
Main Level
1121
Upper Level
794
Garage
420
3
Beds
2 / 1