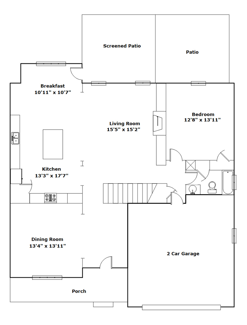
Click an icon on the floor plan below. Once opened you can drag the corresponding content to your prefered location!
Photo Icon -
Information Icon - 
Photo Icon -






























Presented By

Property Details
Total
3089
Main Level
1499
Upper Level
1590
Garage
478
4
Beds
3
