Click an icon on the floor plan below. Once opened you can drag the corresponding content to your prefered location!
Photo Icon -
Information Icon - 
Photo Icon -





























Presented By

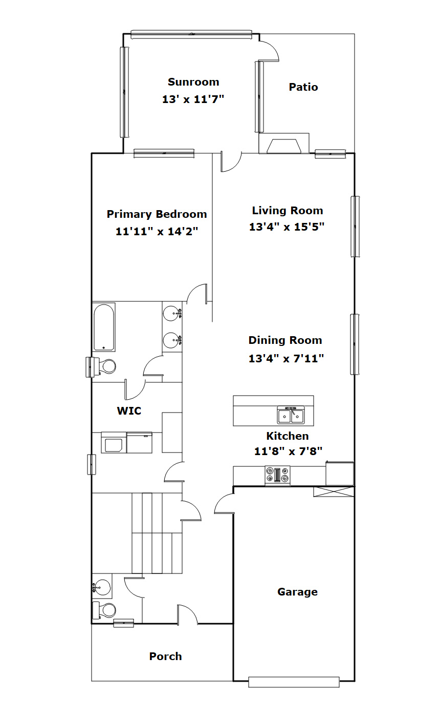
Property Details
Total
1752
Main Level
1218
Upper Level
534
Garage
234
3
Beds
2 / 1
