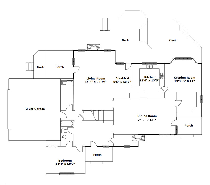
Click an icon on the floor plan below. Once opened you can drag the corresponding content to your prefered location!
Photo Icon -
Information Icon - 
Photo Icon -















































Presented By

Property Details
Total
4206
Main Level
1960
Upper Level
2246
Garage
519
4
Beds
0
