Click an icon on the floor plan below. Once opened you can drag the corresponding content to your prefered location!
Photo Icon -
Information Icon - 
Photo Icon -




































Presented By

Property Details
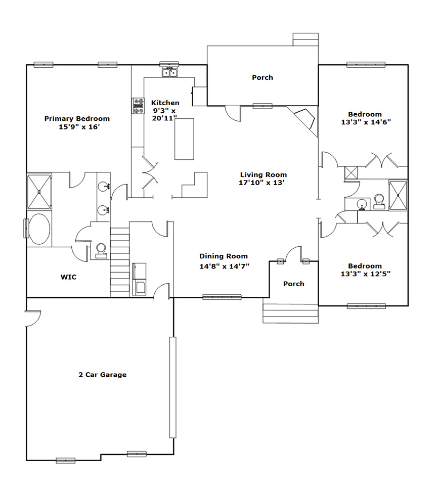
Total
3058
Main Level
2082
Upper Level
976
Garage
588
5
Beds
3
