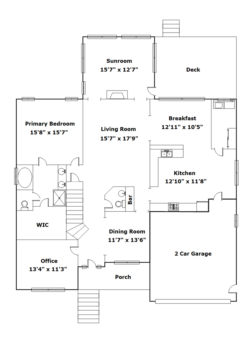
Click an icon on the floor plan below. Once opened you can drag the corresponding content to your prefered location!
Photo Icon -
Information Icon - 
Photo Icon -












































Presented By

Property Details
Total
3540
Main Level
2163
Upper Level
1377
Garage
467
5
Beds
2 / 1
