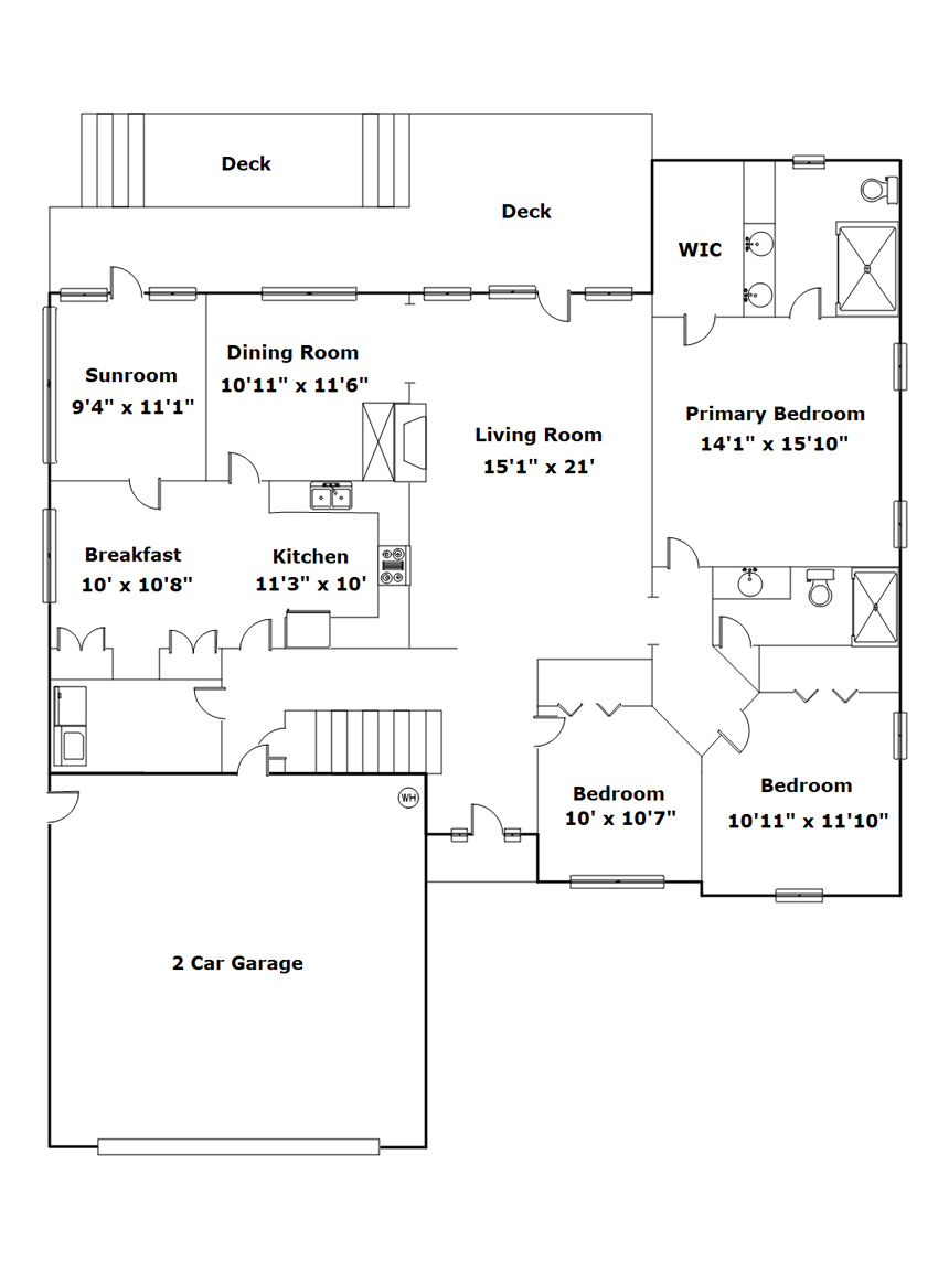
Click an icon on the floor plan below. Once opened you can drag the corresponding content to your prefered location!
Photo Icon -
Information Icon - 
Photo Icon -











































Presented By

Property Details
Total
2636
Main Level
2001
Upper Level
635
Upper Level
573
4
Beds
3
