Presented By
Property Details
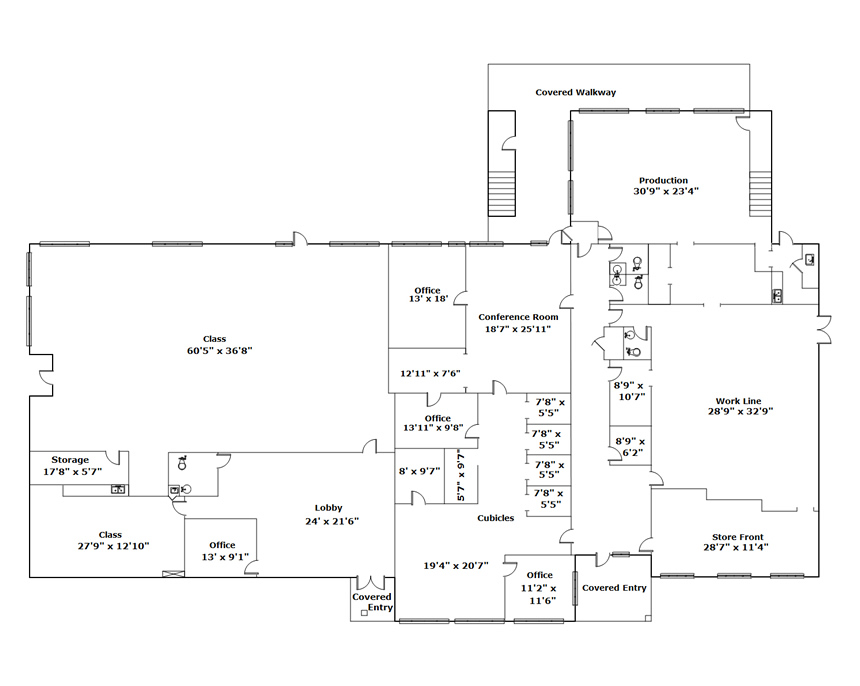
Main Building - First Floor
9654
Main Building - Second Floor
1472
Secondary Building
1222
7
Offices
4
