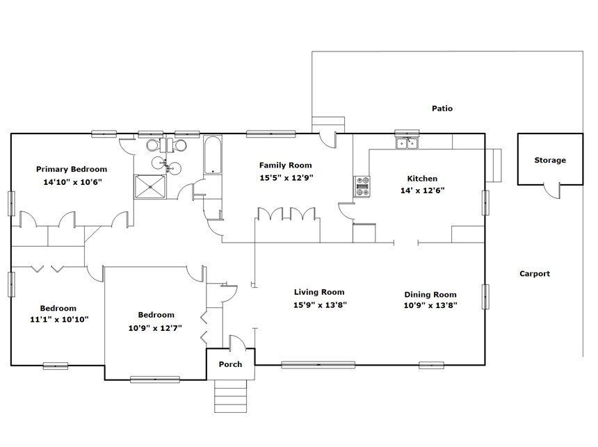
Click an icon on the floor plan below. Once opened you can drag the corresponding content to your prefered location!
Photo Icon -
Information Icon - 
Photo Icon -

































Presented By

Property Details
Main Level
1655
Storage
50
3
Beds
2
