Click an icon on the floor plan below. Once opened you can drag the corresponding content to your prefered location!
Photo Icon -
Information Icon - 
Photo Icon -













































Presented By

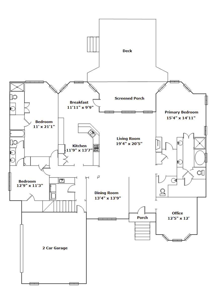
Property Details
Total
3189
Main Level
2743
Frog
446
Garage
520
3
Beds
4
