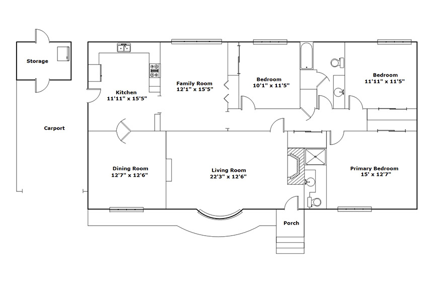
Click an icon on the floor plan below. Once opened you can drag the corresponding content to your prefered location!
Photo Icon -
Information Icon - 
Photo Icon -





























Presented By

Property Details
Main Level
1782
Storage
67
3
Beds
2
