Click an icon on the floor plan below. Once opened you can drag the corresponding content to your prefered location!
Photo Icon -
Information Icon - 
Photo Icon -





























Presented By

Property Details
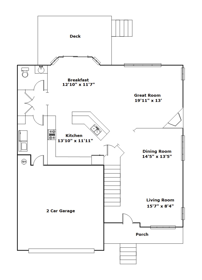
Total
2851
Main Level
1278
Upper Level
1573
Garage
446
3
Beds
2 / 1
