Click an icon on the floor plan below. Once opened you can drag the corresponding content to your prefered location!
Photo Icon -
Information Icon - 
Photo Icon -



























Presented By

Property Details
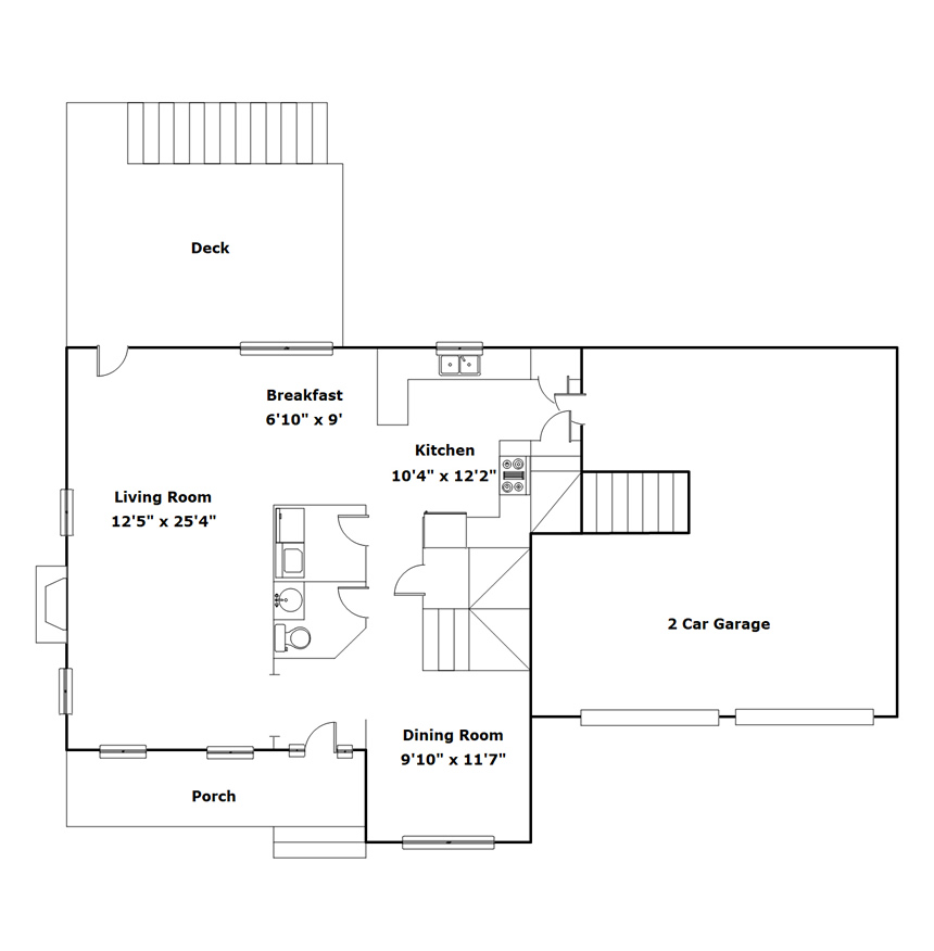
Total
2072
Main Level
927
Upper Level
871
FROG
274
Garage
535
3
Beds
2 / 1
