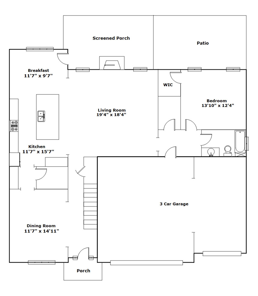
Click an icon on the floor plan below. Once opened you can drag the corresponding content to your prefered location!
Photo Icon -
Information Icon - 
Photo Icon -































Presented By

Property Details
Total
3624
Main Level
1529
Upper Level
2095
Garage
751
5
Beds
4
