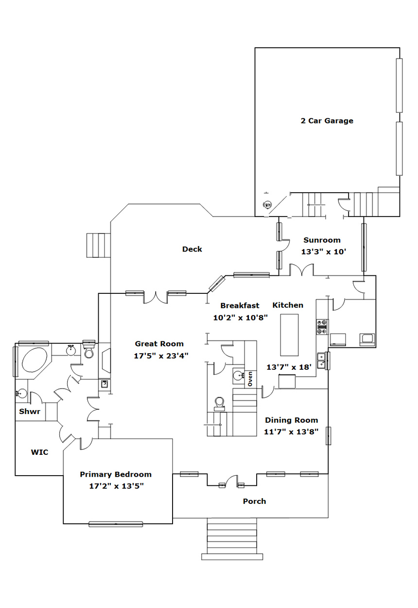
Click an icon on the floor plan below. Once opened you can drag the corresponding content to your prefered location!
Photo Icon -
Information Icon - 
Photo Icon -



















































Presented By

Property Details
Total
3229
Main Level
1992
Upper Level
734
FROG
503
Garage
648
4
Beds
3 / 1
