Click an icon on the floor plan below. Once opened you can drag the corresponding content to your prefered location!
Photo Icon -
Information Icon - 
Photo Icon -














































Presented By

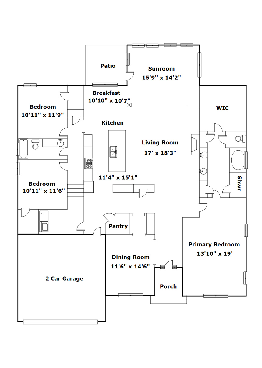
Property Details
Total
3447
Main Level
2606
Upper Level
841
Garage
445
5
Beds
3
