Click an icon on the floor plan below. Once opened you can drag the corresponding content to your prefered location!
Photo Icon -
Information Icon - 
Photo Icon -













































Presented By

Property Details
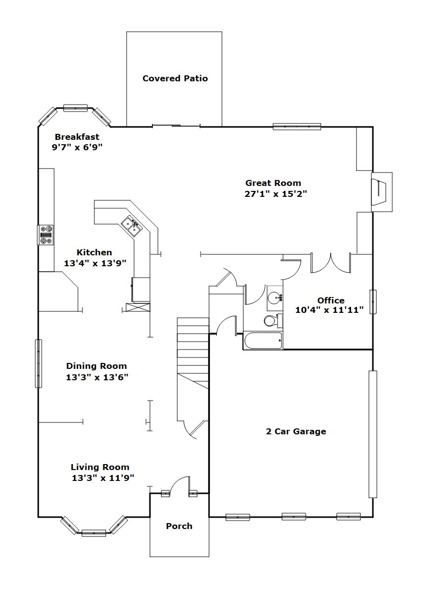
Total
3667
Main Level
1637
Upper Level
2030
Garage
446
4
Beds
3
