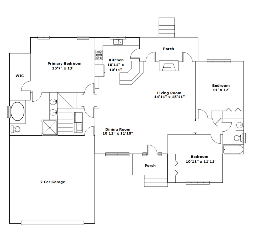
Click an icon on the floor plan below. Once opened you can drag the corresponding content to your prefered location!
Photo Icon -
Information Icon - 
Photo Icon -




































Presented By

Property Details
Total
1984
Main Level
1598
Upper Level
386
Garage
489
3
Beds
2
