Click an icon on the floor plan below. Once opened you can drag the corresponding content to your prefered location!
Photo Icon -
Information Icon - 
Photo Icon -






























Presented By

Property Details
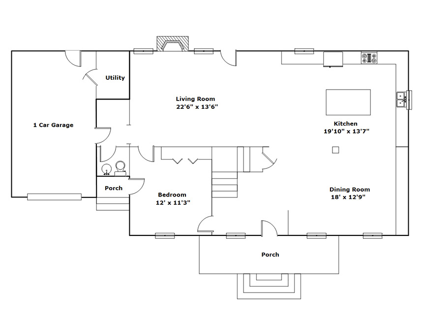
Total
2928
Main Level
1343
Upper Level
1585
Garage
347
5
Beds
3 / 1
