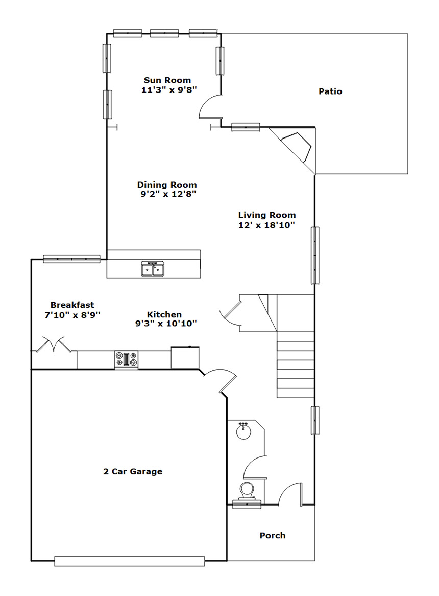
Click an icon on the floor plan below. Once opened you can drag the corresponding content to your prefered location!
Photo Icon -
Information Icon - 
Photo Icon -





































Presented By

Property Details
Total
2054
Main Level
928
Upper Level
1126
Garage
423
3
Beds
2 / 1
