Click an icon on the floor plan below. Once opened you can drag the corresponding content to your prefered location!
Photo Icon -
Information Icon - 
Photo Icon -























Presented By

Property Details
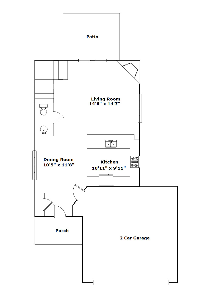
Total
1557
Main Level
653
Upper Level
904
Garage
420
3
Beds
2 / 1
