Click an icon on the floor plan below. Once opened you can drag the corresponding content to your prefered location!
Photo Icon -
Information Icon - 
Photo Icon -










































Presented By

Property Details
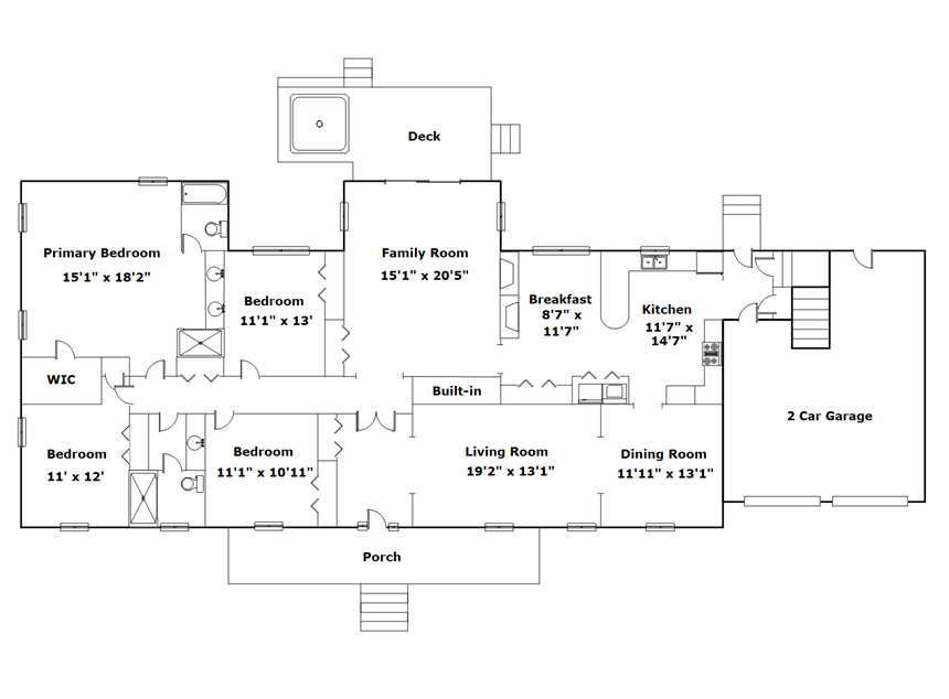
Total
2833
Main Level
2573
Upper Level
260
Garage
502
4
Beds
2
