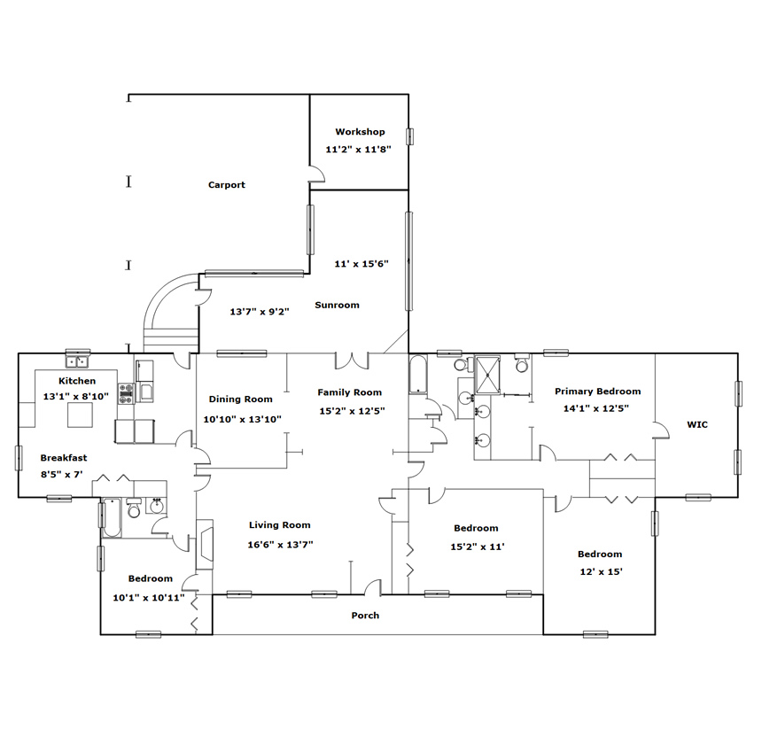
Click an icon on the floor plan below. Once opened you can drag the corresponding content to your prefered location!
Photo Icon -
Information Icon - 
Photo Icon -














































Presented By

Property Details
Main Level
2831
Workshop
140
Storage
304
Outbuilding Upper Level
485
4
Beds
3
