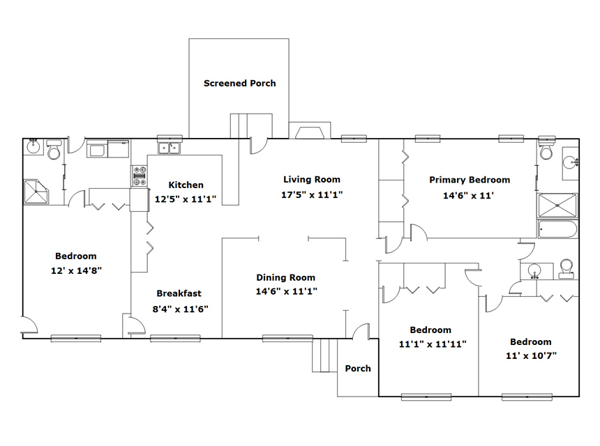
Click an icon on the floor plan below. Once opened you can drag the corresponding content to your prefered location!
Photo Icon -
Information Icon - 
Photo Icon -









































Presented By

Property Details
Main Level
1781
4
Beds
3
