Presented By

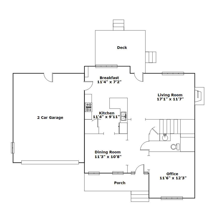
Property Details
Total
2348
Main Level
974
Upper Level
1374
Garage
498
4
Beds
2 / 1
