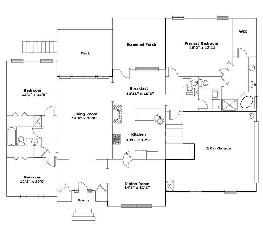
Click an icon on the floor plan below. Once opened you can drag the corresponding content to your prefered location!
Photo Icon -
Information Icon - 
Photo Icon -






































Presented By

Property Details
Total
2398
Main Level
2029
Frog
369
Garage
432
3
Beds
2 / 1
